
刀型閘閥
閥門首頁 > 產品展示 > 閘閥 > 刀型閘閥 > 






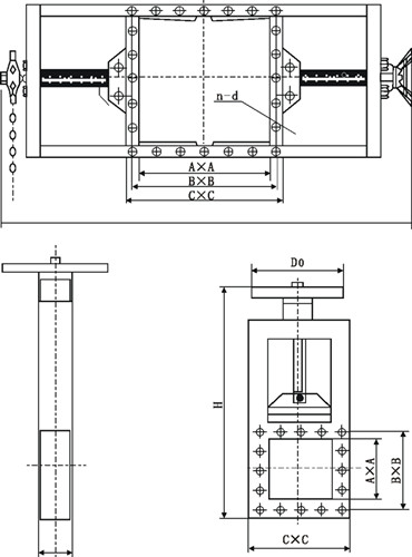
1、具有全通徑的通道,等同于平滑的管道,流通能力大,流阻小;具有雙重上下游密封,無需潤滑的密封部位,密封性好,可靠性高;具有較少的零 部件;設計新穎,既滿足了管線的工藝性要求,又滿足了用戶的操作和維護簡便性的要求,能保證閥門長期可靠地運行。
2、可提升的閘板密封面,可刮除密封面的的粘著物,自動清除雜物。
3、整體的不銹鋼材質,可防止腐蝕破壞。
4、短結構長度,可節省原料、安裝空間,也有效支持管道強度。
5、上密封填料函設計,使上密封安全有效,經久耐用。
6、三角形的支架節省原材料,保證需要的力學性能。
7、閥體加強筋設計提高閥體強度。
8、不銹鋼閥桿經久耐用,雙頭螺使用啟閉更為迅。
|
類別 |
A×A |
B×B |
C×C |
H |
L |
n-d |
重量 |
|
單向 |
200×200 |
256×256 |
296×296 |
820 |
100 |
8-Φ12 |
62 |
|
250×250 |
306×306 |
346×346 |
930 |
100 |
8-Φ14 |
70.5 |
|
|
300×300 |
356×356 |
396×396 |
1050 |
100 |
8-Φ14 |
81 |
|
|
400×400 |
456×456 |
496×496 |
140 |
100 |
12-Φ14 |
114 |
|
|
450×450 |
510×510 |
556×556 |
1450 |
120 |
12-Φ18 |
130 |
|
|
500×500 |
560×560 |
606×606 |
1610 |
120 |
16-Φ18 |
147 |
|
|
雙向 |
600×600 |
660×660 |
706×706 |
1830 |
120 |
16-Φ18 |
169 |
|
700×700 |
770×770 |
820×820 |
2130 |
140 |
20-Φ18 |
236 |
|
|
800×800 |
870×870 |
920×920 |
2440 |
140 |
20-Φ18 |
303 |
|
|
900×900 |
974×974 |
1030×1030 |
2660 |
160 |
27-Φ23 |
424 |
|
|
1000×1000 |
10741074 |
1130×1130 |
2870 |
160 |
24-Φ23 |
636 |
|
|
說明 |
LMD-單向 |
I-手輪 |
距地面小于1.7米用手輪,大于1.7米用鏈輪 |
||||

上一篇:電動刀閘閥PZ973H-10 DN700礦用隔爆型 / 下一篇:DZ973X-10C-DN450智能一體化型電動暗桿式刀閘閥